The humble den has undergone a remarkable evolution in the world of pre-construction condominiums. The intricate process of designing a condominium building involves careful consideration of unit mixes while ensuring minimum room sizes are achieved as set out by appropriate building codes. A task that demands extensive collaboration between developers and architects.
Enjoying our content? Subscribe to our free weekly newsletter to get real estate market insights, news, and reports straight to your inbox.
The inclusion of dens has traditionally been seen as a design choice to enhance the appeal, livability, and functionality of residential units, as they were originally planned as large “accessory” spaces, a bonus room within the suite. However, the current landscape of condominium units’ overall sizes is diminishing. This begs the pertinent question: does a den, once a sought-after feature, still hold its significance in today’s living spaces? As developers navigate this period of transition, re-evaluating the purpose and necessity of dens becomes imperative. Are they practical anymore, and what constitutes a den?
Unveiling the Initial Purpose
Historically, the den was a designated space for a quiet reading zone, library, or office. Typically seen while examining older condo buildings, when generously allocated square feet were given to each unit type. In these instances, dens are a substantial size, ranging from an 8’x8’ to a 10’x10’ room or even larger.


As you can see, these generous room sizes make them potential game-changers in the eyes of contemporary home buyers and investors. Today, as the landscape of work transforms with a significant shift toward remote or hybrid employment, those sizeable dens become a valuable asset. Home buyers and investors see these as advantageous spaces that can function as entirely separate rooms for offices, providing a dedicated workspace away from the distractions of the kitchen or dining table.
Amidst the ongoing housing shortage in Canada, the spacious den in condominiums presents a unique opportunity. Recognizing the urgent need for creative solutions, homeowners are ingeniously transforming their grand dens into supplementary sleeping quarters. This innovative repurposing not only provides a pragmatic response to the housing shortage but also showcases the adaptability of modern living spaces. The den, once considered a luxury space, becomes a lifeline during times of housing scarcity.
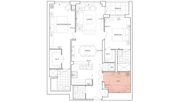
In recent years, condo unit sizes have been reduced, one-bedroom configurations have increased, and the inclusion of dens persists. This prompts a crucial question: are there guidelines or building code requirements shaping the design and functionality of these dens?
A glance back 15 years reveals a stark contrast between the one-bedroom and den layouts then and the ones presented on plans today. The change is not merely aesthetic; it reflects a shift in the very essence of what a den means in the modern condominium.
Baker Real Estate Incorporated’s Baker Insights Group (B.I.G.) delved into this evolution with a comprehensive study in 2021. The study scrutinized the value of dens in new condominium developments, analyzing buyer perceptions and the extent to which dens command a premium in the market. According to the study, the demand for suites with dens has seen a notable increase, with the share of one-bedroom plus den configurations rising from 10% in 2018 to 13% in 2019, and a significant leap to 23% in 2020. Even with consistent square footage, suites with dens commanded a higher price point, showcasing a buyer’s willingness to pay more for the additional space.
Let’s review some of these newer pre-construction building suite layouts with dens, compared to the historical layouts of the space a den used to take up.



Key Findings from Baker Insights Group Study:
- The median one-bedroom suite of approximately 500 square feet sold for about $65,000 less than a similar size one-bedroom suite with a den.
- The study showed that buyers consistently place a significant premium on smaller units with dens, even though it reduces the living room and/or kitchen size.
- For larger units (above 650 square feet), the value of a den increases, providing additional flexibility and multiple uses.
While the idea of creating a den space could be seen as beneficial to the end-user, can the pricepoint of this suite still be valued higher than one without for a suite with a similar total square feet? While the study highlights the premium attached to dens in terms of price per square foot, questions arise about the livability and enjoyment of these units. Could the square footage allocated to dens be better distributed throughout the unit? For instance, enlarging the kitchen, providing more space for a dining area, or increasing closet space may enhance the overall appeal of the unit.
The evolution of dens in condominiums mirrors broader shifts in buyer preferences and market dynamics. The once straightforward bonus room can now be transformed into a multifunctional space, driving changes in pricing strategies and unit configurations. However, as the market continues to change in 2023 and beyond, the role of dens is under reconsideration, raising questions about their continued practicality for both developers and homeowners given their shrinking size.











