Map
Link Copied
Listed price in listed location currency (USD).
$250,000
$245,000

530

MLS® 1157380

  • Key Facts
  • Description
  • Map

Key Facts

Type Single Family Residence
Levels Residential
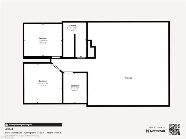
Size 1668 sqft
Garage Yes
Taxes $1,188
Lot Size 0.47 acres
Approx. Age 1995
Avg. Price Per Sqft $146
MLS® Number 1157380

Property Address: 5505 Highland Trace Ct, Winston-Salem, NC, 27105-1760

Average square foot calculated using Size range provided by listing agent.

Description

Plenty of space in this like new split foyer home. You definitely want to see this one! All new flooring throughout, new paint, doors, light fixtures, new mutli head shower in primary bath as well as beautiful new vanities in both bathrooms. Kitchen is a dream with all new stainless steel appliances and quartz countertops w coordinating backsplash. Just off of the kitchen is a deck perfect for outdoor dining. Cozy up in the living room with a fireplace, great natural light and beautiful flooring that flows throughout the rest of the home.
MLS® Number1157380
Laundry Level
Central VacNo
FireplaceNo
Acreage0.47
Exterior
GarageYes
Approx. Age1995
BasementBasement
DrivewayGarage, Garage Faces Side
Garage Spaces2
Heat
A/C
Heating Fuel

Extras

Similar Listings

Price History

Nov 6, 2024End Date
$250,000Sold Price

Sold

Sep 28, 2024List Date
$245,000List Price
  • Commute

Commute

Starting Address
Destination Address
5505 Highland Trace Ct, Winston-Salem, NC

Comparable Properties