Map
Link Copied
Listed price in listed location currency (USD).
$130,000

320

MLS® 20890876

  • Key Facts
  • Description
  • Rooms
  • Map

Key Facts

Type Mobile Home
Levels Residential
Size 2016 sqft
Garage No
Taxes $948
Days Active 283
Lot Size 0.55 acres
Approx. Age 2005
Avg. Price Per Sqft $64
MLS® Number 20890876

Property Address: 134 Saint Michaels Dr, Trinidad, TX, 75163-5085

Average square foot calculated using Size range provided by listing agent.

Description

Discover the charm of this rustic, spacious doublewide home crowned with a new metal roof (2024). Step into the roomy living room, where a cozy fireplace invites relaxation and gatherings. The kitchen boasts a central island, ample cabinetry, and an abundance of natural light, creating an inviting space for culinary adventures. The generously sized primary bedroom offers a peaceful sanctuary, while the additional bedrooms are equally accommodating. Situated on multiple parcels, the home provides ample space for outdoor living. Trinidad is known for its small-town charm, scenic countryside, and close proximity to Cedar Creek Lake. Cedar Creek Lake is one of the largest lakes in Texas known for boating & bass fishing. Embrace the opportunity to make this delightful home your own and experience the unique blend of rural charm and modern convenience that Trinidad has to offer. Proudly claim Your Piece of Texas!
MLS® Number20890876
Laundry LevelWasher Hookup, Electric Dryer Hookup, Laundry In Utility Room
Central VacNo
FireplaceNo
Acreage0.55
Exterior
GarageNo
Approx. Age2005
Basement
DrivewayCarport
Garage Spaces0
Heat
A/C
Heating Fuel

Extras

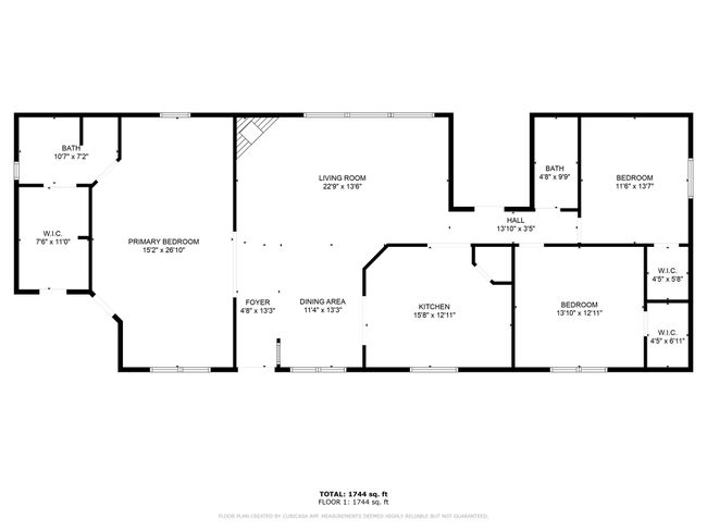
Rooms

Bedroom 1:First Floor26 × 15 ft
Dining Room:First Floor13 × 11 ft
Other:First Floor7 × 10 ft
Bedroom 1:First Floor13 × 11 ft
Kitchen:First Floor12 × 15 ft
Bathroom 1:First Floor9 × 4 ft
Living Room:First Floor13 × 22 ft

Similar Listings

Price History

-End Date
Not Sold YetSold Price

For Sale

Apr 10, 2025List Date
$130,000List Price
  • Commute

Commute

Starting Address
Destination Address
134 Saint Michaels Dr, Trinidad, TX

Like what you see?

Complete the form and we'll be in touch. No login necessary.

Add a Comment
Loading...

Comparable Properties