Map
Link Copied
426

MLS® X12283620

  • Key Facts
  • Description
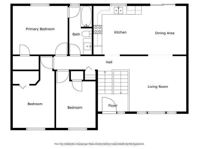
  • Rooms
  • Map

Key Facts

Type Single Family Residence
Levels Residential
Size -
Garage Yes
Taxes $4,795
Lot Size 
Approx. Age 
MLS® Number X12283620

Property Address: 2007 7th Ave E, Owen Sound, ON, N4K6R9

Average square foot calculated using Size range provided by listing agent.

Description

Welcome to this meticulously maintained 4-bedroom family home offering exceptional comfort, functionality and versatility. Ideal for multigenerational living or income potential $$$ with the standout private in-law suite that features a custom galley kitchen, full bathroom, bedroom and cozy family room with a Napoleon gas fireplace. Enjoy added peace and quiet with Rockwool Safe 'n' Sound insulation between the lower and upper levels. The main level boasts hardwood flooring throughout, creating a warm, cohesive living space. The updated main bathroom offers modern style and convenience with ensuite privileges to the primary bedroom that boasts a large walk-in closet. Two additional main floor bedrooms. This home delivers on storage and utility, with spray-foam insulated under-porch storage, shed, and under-stair storage. The double car garage features epoxy floors, a side mount Smart garage door opener and interior access. Additional upgrades include: Central vac system, Gutter guards for low-maintenance exterior care, 200 amp updated panel with pony panel to utility room, Air exchanger with humidistat for a healthy indoor environment. Prime Eastside location within close proximity to local schools, Georgian College, the Hospital, shopping, restaurants, parks and the scenic Niagara Escarpment. This move-in-ready home is a rare find with thoughtful upgrades, ample storage and a flexible layout that works for a variety of lifestyles. Don't miss your chance to make it yours! Call your Realtor today.Show Description
MLS® NumberX12283620
Laundry Level
Central VacNo
FireplaceNo
Acreage
Exterior
GarageYes
Approx. Age
BasementFinished with Walk-Out
DrivewayGarage Type:Attached
Garage Spaces
Heat
A/C
Heating Fuel

Extras

Rooms

Show Details
Utility Room:25.83 × 26.91 ft

Similar Listings

Price History

00/00/0000End Date
$XXX,XXXSold Price
Top Secret
00/00/0000List Date
$XXX,XXXList Price
00/00/0000End Date
$XXX,XXXSold Price
Top Secret
00/00/0000List Date
$XXX,XXXList Price
  • Commute

Commute

Starting Address
Destination Address
2007 7th Ave E, Owen Sound, ON

Comparable Properties