Map
Link Copied
Listed price in listed location currency (USD).
$685,000
$695,000

440

MLS® 6706482

  • Key Facts
  • Description
  • Rooms
  • Map

Key Facts

Type Single Family Residence
Levels Residential
Size 3382 sqft
Garage Yes
Taxes $9,536
Lot Size 
Approx. Age 1988
Avg. Price Per Sqft $205
MLS® Number 6706482

Property Address: 3141 12th St Nw, New Brighton, MN, 55112-8907

Average square foot calculated using Size range provided by listing agent.

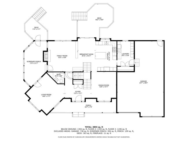
Description

When you walk into this beautiful home, you are met with a modern Victorian floor plan. The foyer opens to a sunken parlor with natural lighting, a stunning formal dining room, a powder room and a cozy family room that opens to a gorgeous updated eat-in kitchen, perfect for entertaining. Through the family room, you can enjoy sunrises on the heated 3-season porch. The kitchen leads to the home's two decks down to a paver patio and beautifully landscaped and meticulously maintained yard and gardens. The 3-car tandem attached garage brings you into the home's back entry and updated laundry room/mud room. Up the double-sided staircase, you will find the primary suite and full bath with a walk-in closet as well as 3 additional bedrooms and a full bathroom. The basement offers a fully finished family room and a built-in entertainment center, along with a finished craft room and a full bathroom. The exterior of the home is updated with a newer roof, windows, and siding. All of this nestled in the Bent Tree Hills neighborhood with easy access to Hwy 694 and Mounds View Schools.
MLS® Number6706482
Laundry Level
Central VacNo
FireplaceNo
Acreage
Exterior
GarageYes
Approx. Age1988
BasementFinished, Full
DrivewayAttached Garage, Tandem
Garage Spaces3
Heat
A/C
Heating Fuel

Extras

Rooms

Other:Basement14 × 9 ft
Kitchen:Main Floor16 × 19 ft
Dining Room:Main Floor14 × 14 ft
Bedroom 4:Upper Level14 × 13 ft
Bedroom 2:Upper Level11 × 12 ft
Laundry:Main Floor13 × 9 ft
Bedroom 1:Upper Level16 × 16 ft
Bedroom 3:Upper Level14 × 12 ft
Family Room:Basement16 × 24 ft
Other:Upper Level10 × 13 ft
Other:Main Floor12 × 16 ft

Similar Listings

Price History

Jul 11, 2025End Date
$685,000Sold Price

Sold

Apr 26, 2025List Date
$695,000List Price
  • Commute

Commute

Starting Address
Destination Address
3141 12 Th St Nw, New Brighton, MN

Curious about your home's value?

Comparable Properties