Map
Link Copied
Listed price in listed location currency (USD).
$126,750
$139,900

213

MLS® 1695823

  • Key Facts
  • Description
  • Rooms
  • Map

Key Facts

Type Single Family Residence
Levels Residential
Size -
Garage Yes
Taxes $1,864
Lot Size 0.1515 acres
Approx. Age 1902
MLS® Number 1695823

Property Address: 1717 Myer Ave, McKeesport, PA, 15133-3308

Average square foot calculated using Size range provided by listing agent.

Description

Welcome to this charming 2 bedroom, 1 bath home that offers a perfect blend of comfort and functionality! Step inside to find beautiful hardwood floors flowing throughout, creating a warm and inviting atmosphere. The spacious kitchen is ideal for cooking and gathering, while the screened in porch provides a cozy spot to relax and enjoy the outdoors. Downstairs, a finished family room offers additional living space. Perfect for movie nights, a home office, or a play area. Outside, you’ll love the oversized, fenced yard—great for pets, gardening, or entertaining. Tucked away at the rear of the property is a 3-car detached garage, offering tons of storage and parking options. Don't miss the opportunity to own this well maintained home with plenty of indoor and outdoor space to make your own!
MLS® Number1695823
Laundry Level
Central VacNo
FireplaceNo
Acreage0.1515
Exterior
GarageYes
Approx. Age1902
BasementWalk Out Access
DrivewayDetached, Garage
Garage Spaces
Heat
A/C
Heating Fuel

Extras

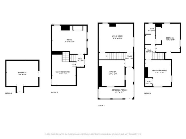
Rooms

Bedroom 1:Upper Level12 × 12 ft
Kitchen:Main Floor12 × 12 ft
Living Room:Main Floor13 × 16 ft
Bedroom 2:Upper Level13 × 11 ft
Family Room:Lower Level13 × 16 ft

Similar Listings

Price History

Apr 27, 2025End Date
$126,750Sold Price

Sold

Apr 9, 2025List Date
$139,900List Price
  • Commute

Commute

Starting Address
Destination Address
1717 Myer Ave, McKeesport, PA

Comparable Properties