Map
Link Copied
Listed price in listed location currency (USD).
$410,000
$428,700

643640 sqft0

Listing courtesy of Corbin Yaldoo of C3 CRE, LLC : 2482201110

Buyer represented by {{agentName}} of {{officeName}}

  • Key Facts
  • Description
  • Map

Key Facts

Type Single Family Residence
Levels Residential
Size 3640 sqft
Garage Yes
Taxes $5,784
Lot Size 
Approx. Age 2000
Avg. Price Per Sqft $117
MLS® Number 5050181780

Property Address: 2318 Flagstone Dr, Flushing, MI, 48433-2582

Average square foot calculated using Size range provided by listing agent.

Description

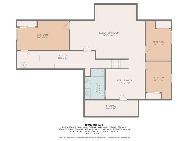
This beautiful home features 6 spacious bedrooms and 4 bathrooms (3 full, 1 half). It's located on a picturesque shaded lot which backs up to a wooded area for enhanced privacy. This property is located within the Flushing school district and was built in 2000 using 2"x 6" frame construction. It offers 3, 640 total square feet of finished living space, with 2, 540 square feet above ground and 1, 100 square feet below grade. The property features new roads installed in 2023, with the tax assessment fully paid. Furthermore, a new roof was installed on the house and shed in 2025, including a transferable warranty. New Whirlpool appliances in black stainless finish were also installed in 2025. The kitchen was tastefully renovated in 2023, including hardwood floors. New carpeting has been installed in common areas and the master suite in 2025. An additional detached 15' x 20' frame-built garage features a concrete floor. The residence boasts Andersen windows and a new oversized 8-foot Andersen sliding glass door, installed in 2020. Additional features include an in-ground lawn irrigation system, back-up sump pump system, and three-sided natural gas fireplace. This lovely home showcases meticulous ownership.
MLS® Number5050181780
Laundry Level
Central VacNo
FireplaceNo
Acreage0.35
Exterior
GarageYes
Approx. Age2000
Basement
DrivewayTwo Car Garage, Attached
Garage Spaces
HeatForced Air, Natural Gas
A/C
Heating Fuel

Extras

2318 Flagstone Dr, Flushing, MI, 48433-2582

Similar Listings

Price History

List Date
List Price
Status
End Date
Sold Price
Jul 15, 2025
$428,700

Sold

Aug 14, 2025
$410,000

Listing courtesy of Corbin Yaldoo of C3 CRE, LLC : 2482201110

Provider logo
Copyright © 2025 Realcomp II Ltd. Shareholders. IDX information is provided exclusively for consumers' personal, non-commercial use and may not be used for any purpose other than to identify prospective properties consumers may be interested in purchasing and that the data is deemed reliable but not guaranteed accurate by the MLS.

eXp Realty Michigan | Christi Rice, State Broker | 101 W Big Beaver Rd, Suite 1400, Troy, MI 48084 | 888-501-7085 | MI.Broker@exprealty.net

Data last updated at: October 8, 2025 at 11:13 PM

  • Commute

Commute

Starting Address
Destination Address
2318 Flagstone Dr, Flushing, MI

Comparable Properties